Step into many homes in the late afternoon, and the problem is immediately familiar: the air feels heavy, the floors are warm underfoot, and the sun’s rays seem to linger long after it has passed. Turning on the air-conditioner helps, but not always in the way homeowners expect.
That’s because much of the heat has already entered and settled into the space. In Singapore’s tropical climate, factors like solar gain through windows, trapped airflow, and heat-retaining materials all play a role. Addressing these issues early, or even after renovation, can significantly improve how a home feels day to day.
The good news: comfort isn’t just about cooling harder. It’s about reducing heat build-up in the first place, and using the right combination of strategies to manage light, airflow, and materials. Here are nine that interior designers and specialists consistently rely on.
Applying window film directly to the glass helps reduce heat before it enters the home.
Jestac Pte Ltd
#1. Stop heat at the window, not after it enters
Most homeowners try to cool a room after it has already heated up—by lowering the air-con temperature or running it for longer. Unfortunately, in many Singapore homes, especially those facing strong afternoon sun, the bigger issue is how much heat is entering in the first place.
“An effective window film solution helps to reduce solar energy from entering through the windows, and is part of the total solution to cool down the home,” says Steve Pang, a sales consultant from Jestac, a Singapore-based window film specialist and authorised distributor of 3M architectural films.
Different window films offer varying levels of heat rejection and light transmission, depending on the needs of the space.
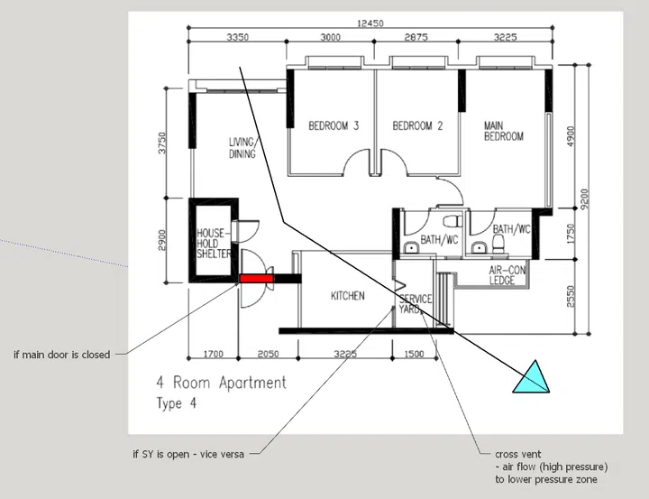
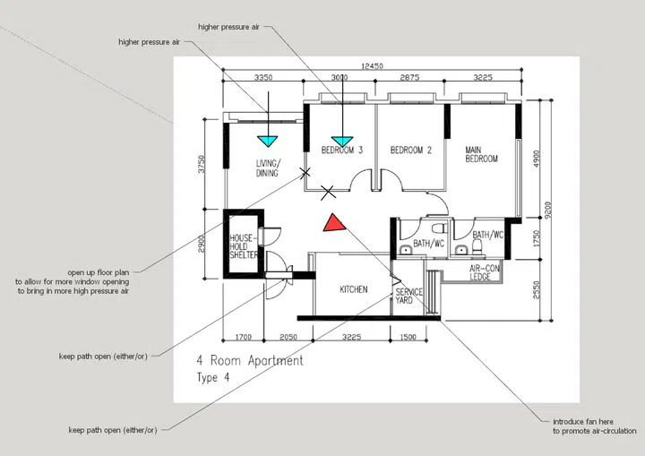
Windows are typically the largest and most exposed surfaces in a home. When left untreated, they allow heat to pass through and build up on floors, walls, and furniture—which then continue releasing warmth even after the sun has moved.
This is why designers often prioritise treating windows early, especially in west-facing homes. Solutions like window film, along with the right blinds or curtains, help reduce how much heat enters the space in the first place—instead of trying to cool it down after it has already built up.
Sheer curtains soften glare and diffuse light, but are typically used alongside other solutions to manage heat more effectively.
#2. Choose solutions that block heat, not just light
A dimmer room doesn’t necessarily mean a cooler one—a distinction that is often overlooked when choosing window treatments.
“The key components of the solar spectrum are ultraviolet (UV), visible light and infrared (IR),” explains Steve. “Glare reduction is about reducing visible light… Heat rejection is about reducing transmission of heat energy from the solar infrared wavelengths.”
Filtered daylight can still carry heat into the room, gradually warming surfaces even when glare is reduced.
Fabrik Etc
In other words, curtains or blinds are effective at softening glare and improving visual comfort, but they work differently from solutions that reduce heat at the glass itself. This is why some spaces still feel warm even when they appear shaded.
For homeowners, understanding this difference is key. The most effective approach is often to combine strategies—using window film to reduce heat gain, alongside curtains or blinds to manage light, privacy, and overall comfort.
Before: without treatment, direct sunlight can quickly heat up a room and make it uncomfortable during peak hours.
Jestac Pte Ltd
#3. Use window film to reduce heat at the source
Among the most effective ways to manage heat gain is to intervene at the glass itself—before solar energy enters the room.
“Window film rejects heat at the glass level, before it enters the room,” says Steve. “Curtains and blinds, on the other hand, block sunlight only after it has already passed through the glass and turned into heat.”
This distinction is important. By the time sunlight passes through untreated glass, much of its heat has already been absorbed into the space. Window film works earlier in the process, reducing overall heat build-up while still allowing natural light to enter.
After: with window film applied, glare is reduced and the space remains bright, but noticeably more comfortable.
In real-world applications, the difference can be noticeable. “Most homeowners can expect a reduction in heat intensity—between 2 to 5 degrees Celsius, along with less glare almost immediately after installation,” adds Raymond Hay, a senior sales consultant at Jestac.
That said, window film is not a complete solution on its own. It reduces heat gain but does not eliminate heat entirely, making it most effective when paired with other window treatments. Setting realistic expectations—and layering solutions—is key.





